Vår nyeste hyttemodell med 4 soverom, 2 bad, 2 stuer og innvendig bod/teknisk rom.
Tyslandhytta 4
Tyslandhytta 4
Bebygd areal(BYA): 92,9 m2
Bruksareal(BRA): 75,6 m2
Gulvflater: Total 123 m2
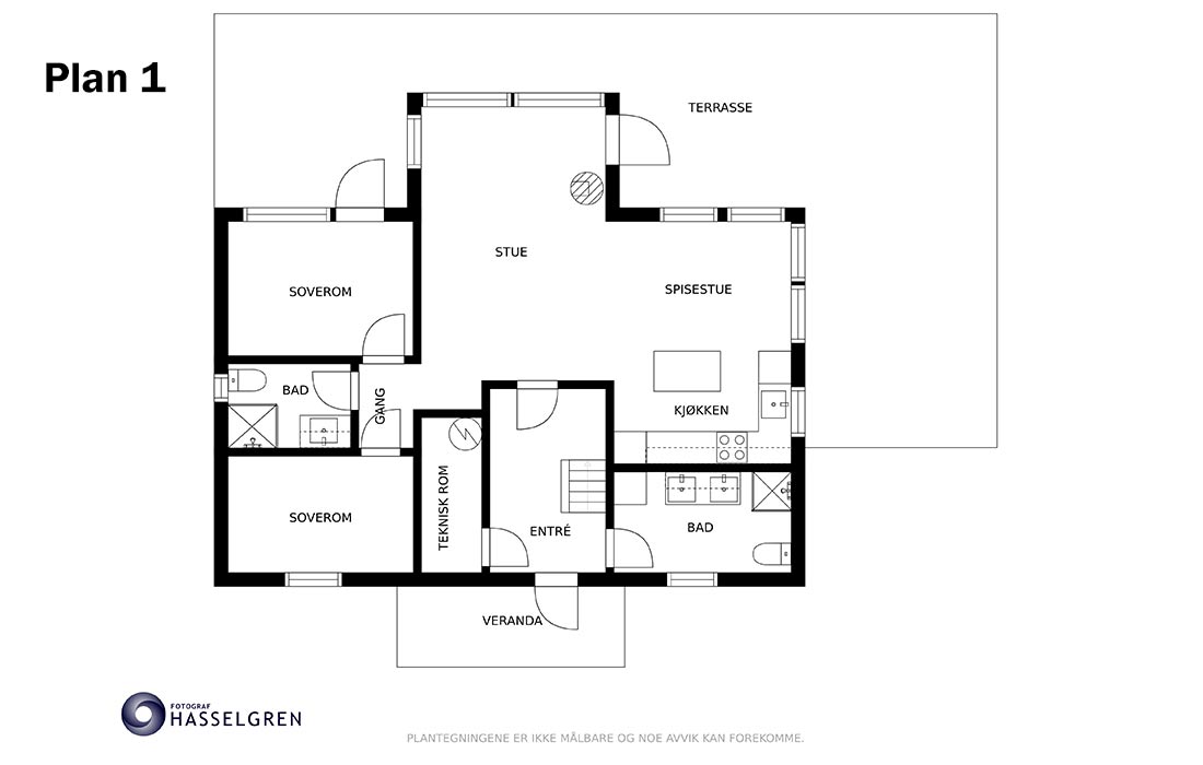
1. etasje: 72,3 m2
Loft/hems: 50,7 m2.
Loft/hems er under 189,5 cm og regnes ikke som målbart areal.
Pris fra kr. 3 590 000,-
Tomt, graving og omkostninger kommer i tillegg.



Byggteknisk informasjon:
Hytta er bygd i bindingsverk med 148mm tykkelse i vegger med 15 cm isolasjon. På innsiden er det lagt fuktsperre og lektet ut med 5 cm isolasjon. Totalt 20 cm isolasjon i alle vegger.
muse- og smågnagersikring er montert rundt hele hytta.
Alle materialer til reisverk er C24 fra Moelven i Trysil – lokalt sterkt trevirke.
Tak
Takverket er solide takstoler produsert av Optimera Byggsystemer. Her slipper man å tenke på å måke snø av taket når det er vanlig vinter. Vindsperre og 5 cm lufting. 18mm OSB-plater og grå shingel, som er vedlikeholdsfri.
Lufting fra yttervegger går opp til toppen av taket, der det er montert møneplater/lufting. Takrenner i sort stål og nedløp i kjetting.
Heldekkende pipebeslag i svart metall.
Dører og vinduer
2-lags energi & sikkerhetsglass vinduer 2S laminert og herdet fra Natre Vinduer på Gjøvik.
Hvitmalte terrassedører med stort glassfelt fra samme leverandør.
Ytterdør med vindu fra Sweedoor.
Innvendige dører, Odin formpresset fra Harmonie.
Utvendig
Utenpå reisverket er det montert Isola aluminiumsstag som stiver av hvert hjørne på veggene. Vindsperre rundt alle vegger og 36 mm lufting. Liggende dobbelfals kledning.Det er montert insektnetting i alle gesims-kasser. All utvendig panel er beiset med Tjæralin med fargen Seterbrun.
Utelamper med opp/ned lys på hvert hjørne – totalt 7 stk.
Taklampe ved inngangsparti.
Utekran utenfor bad 2.
Innvendig
Innvendig høyde i 1 etg er ca. 225cm. På loft/hems høyden 189,5 cm på midten. Ca 100 cm ute ved kneveggen.
Alle innvendige vegger er isolert med Glava. Hvitlasert skygge skrå panel i alle tak.
Hvitmalte utforinger til alle vinduer og dører.
Hvitmalte profilerte 70mm lister i hele hytta.
Panelovner i alle rom der det ikke er varmekabler.
Alle innerdører er hvitmalte.
Bildegalleri























Detaljbeskrivelse av rom
Bad 1:
Varmekabler i gulv. Våtromsplater på vegger og membra utført etter våtromsnormen.
30x30 cm mørk grå gulvfliser Eivissa Carbon. 5x5 cm mosaik i dusjen.
Innfellbare 90x90 dusjdører med svart profil.
120 cm Lind Luxery, svart farge dobbel baderomsinnredning, med skuffer. Praktisk speilskap med ledlampe over.
Romslig skap til oppbevaring.
30x60 fliser Titanio beige på veggene.
Svarte armaturer og dusjkran. Svart avtrekksvifte og svarte brytere og stikkontakt,
WC gulvmodell
3 stk Downlights i tak med dimmer.
Vindu 60 x 120
Bad 2:
Varmekabler i gulv. Membra. 30x30 gulvfliser Eivissa Carbon.
Panel på vegger.
80x80 dusjkabinett med glassdører. Wc gulvmodell.
60 cm Lind Continental baderomsinnredning med speilskap. Ledlampe over speilskap,
Oyster taklampe. Stikkontakt. Avtrekksvifte.
Vindu 50 x 50


Kjøkken:
Kjøkkeninnredning Lerhyttan fra Ikea, 60x120 kjøkkenøy med fliser på toppen.
Kombinert kjøl/frys, stekovn med pyrolyse, koketopp induksjon, oppvaskmaskin og mikro. Avtrekksvifte. Aqua-stop under vask og oppvaskmaskin.
Ledskinne med dimmer og 3 spotter over kjøkkenøy, chef Ledlamper under overskap.
Vindu 80 x 110 over kjøkkenvask.
4 store vinduer på 110 x 180 ved spisebord.
Stue:
Kronotex Mammut Oak Beige parkettlaminat på gulv, furupanel skygge skrå med fargen Stemning, hvitmalte profilerte lister og utforinger, hvitlasert skygge skrå panel i tak.
3 stk doble stikkontakter, 7 stk downlights med dimmer, 2 store vinduer på 160 x 180, ett på 90 x 180 og terrassedør 90 x 200 med utgang til terrasse. Panelovn.
Peisovn Aduro 9, med glassplate og stålpipe.
Soverom 1:
Kronotex Mammut Oak Beige parkettlaminat på gulv, furupanel skygge skrå med fargen Stemning, hvitmalte profilerte lister og utforinger, hvitlasert skygge skrå panel i tak.
3 stk doble stikkontakter, taklampe oyster, plass til garderobeskap, stort vindu 110 x 180 og terrassedør 90 x 200 med utgang til terrasse. Panelovn.
Soverom 2:
Kronotex Mammut Oak Beige parkettlaminat på gulv, furupanel skygge skrå med fargen Stemning, hvitmalte profilerte lister og utforinger, hvitlasert skygge skrå panel i tak.
3 stk doble stikkontakter, taklampe oyster, plass til garderobeskap, 60 x 120 vindu. Panelovn.
Gang:
Varmekabler i gulv, 60x60 Cemento Usurato gulvfliser, trapp til loft,
Teknisk rom:
Varmekabler i gulv, membra, 30x30 Eivissa Carbon gulvfliser. Veldig praktisk å tørke klær og skisko på varmt gulv med sluk.
Vanninntak med varmekabler i røret, hovedstoppekran, 200 liter varmtvannsbereder heat injection, opplegg til vaskemaskin, rør i rør system i tilfelle lekkasje. 50 x 50 vindu.
Sikringsskap. Avtrekksvifte. Astro ur til styring av utelys. Egen alarm til septiktank.


Kronotex Mammut Oak Beige parkettlaminat på gulv, furupanel skygge skrå med fargen Stemning, hvitmalte profilerte lister og utforinger, hvitlasert skygge skrå panel i tak.
4 stk doble stikkontakter, Nirvana 2 LED vegglampe, 80 x 110 vindu. Panelovn.
Innvendige mål på soverom er 330 x 385
Soverom 4, loft:
Kronotex Mammut Oak Beige parkettlaminat på gulv, furupanel skygge skrå med fargen Stemning, hvitmalte profilerte lister og utforinger, hvitlasert skygge skrå panel i tak.
4 stk doble stikkontakter, Nirvana 2 LED vegglampe, 80 x 110 vindu. Panelovn.
Innvendige mål på soverom er 330 x 385
Kronotex Mammut Oak Beige parkettlaminat på gulv, furupanel skygge skrå med fargen Stemning, hvitmalte profilerte lister og utforinger, hvitlasert skygge skrå panel i tak.
10 stk doble stikkontakter, downlights i tak og spotskinne i trappa – begge med dimmere, 2 store flotte 160 x 160 trekant-panoramavinduer. Panelovn.
Ute:
Overbygd inngangsparti med taklampe Platina. Kledning beiset med fargen Seterbrun.
7 stk oppned lamper rundt hytta. Utvendig stikkontakter.
Utekran vann utenfor bad 2.
Vei og parkeringsplass er ferdig gruset.
Mulighet for å bygge garasje/bod på opptil 40m2.
Innvendige mål på soverom er 330 x 385
HER LIGGER TOMTENE
Vi hjelper deg med å realisere hyttedrømmen!
Ikke nøl med å ta kontakt dersom du har spørsmål knyttet til våre hytter eller tjenester.





