En innholdsrik, miljøsmart og lekker minihytte på 50m2 med ett gedigent uteområde med utekjøkken, stor terrasse og grillplass med bålpanne.
Nyhet!
Tyslandhytta Mini
Tyslandhytta Mini
Tyslandhytta Mini har 2(3) soverom, komplett bad, åpen stue/kjøkkenløsning, Tv-stue på hems, gang med varmekabler, utebod og overbygd inngangsparti.
Store vinduer som slipper lys og varme inn.
Gedigen terrasse med utekjøkken og egen grillplass med bålpanne.
Bebygd areal(BYA): 59,7 m2.
Bruksareal(BRA): 50,9 m2.
Gulvflater: Total 74 m2
1. etasje: 48 m2
Loft/hems: 26 m2.
Loft/hems er under 189,5 cm og regnes ikke som målbart areal.
Pris fra kr. 2 500 000,-
Inkludert stor selveiertomt. Kun kr 6330,- i omkostninger.



Byggteknisk informasjon:
Hytta er bygget etter Byggeteknisk forskrift TEK 17 og selges etter bustadoppføringslova med alle garantier.
Innhold:
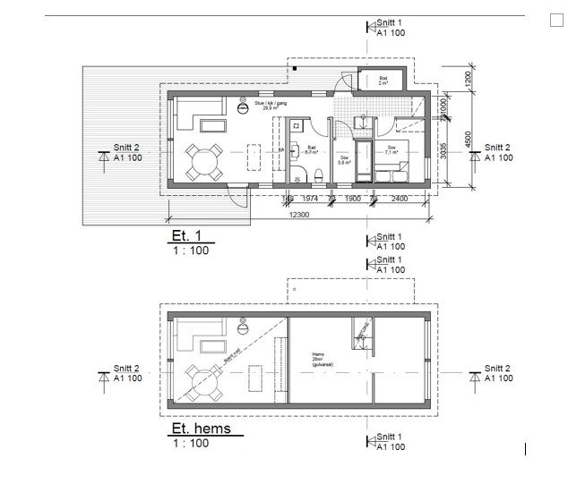
1. Etasje: 1 bad, stue/kjøkken, gang og 2 soverom.
2. Etasje: 1 soverom og hems/loftstue.
Plantegning:

Reisverk:
Hytta er bygd i bindingsverk med 148mm tykkelse i vegger med 15 cm isolasjon. På innsiden er det lagt fuktsperre og lektet ut med 5 cm isolasjon. Totalt 20 cm isolasjon i alle vegger. Muse- og smågnagersikring er montert rundt hele hytta. Alle materialer til reisverk er C24 fra Moelven i Trysil – lokalt sterkt trevirke.
Tak:
Takverket er solide takstoler produsert av Optimera Byggsystemer. Her slipper man å tenke på å måke snø av taket når det er vanlig vinter. Vindsperre og 5 cm lufting. 18mm OSB-plater og grå shingel, som er vedlikeholdsfri. Takrenner i sort stål og nedløp i kjetting. Heldekkende pipebeslag og lufting til septik i svart metall
Dører og vinduer::
2-lags energiglass «super» 4-16-4 & sikkerhetsglass vinduer 2S laminert og herdet fra Rørosvinduet. Hvitmalte terrassedører med stort glassfelt fra samme leverandør. Ytterdør med vindu fra Sweedoor. Innvendige dører, Odin formpresset fra Harmonie.
Utvendig:
Utenpå reisverket er det montert Isola aluminiumsstag som stiver av hvert hjørne på veggene. Vindsperre rundt alle vegger og lufting. Liggende dobbelfals kledning. Det er montert insektnetting i alle gesimskasser. All utvendig panel er beiset med Tjæralin med fargen Nøttebrun. Utelamper med på hvert hjørne – 3 stk. Taklampe ved inngangsparti. Utekran utenfor bad.
Innvendig:
Innvendig høyde i 1 etg er ca. 225cm. På loft/hems høyden 149,5 cm på midten. Ca 70 cm ute ved kneveggen. Alle innvendige vegger er isolert med Glava. Hvitlasert skygge skrå panel i alle tak. Hvitmalte utforinger til alle vinduer og dører. Hvitmalte profilerte 70mm lister i hele hytta. Panelovner i alle rom der det ikke er varmekabler. Alle innerdører er hvitmalte.
Bildegalleri













Detaljbeskrivelse av rom
Bad:
- Varmekabler i gulv. Våtromsplater på vegger og membra utført etter våtromsnormen.
- 60x60 cm gulvfliser compakt Marengo. 5x5 cm mosaikk i dusjen.
- Innfellbare 90x90 dusjdører med svart profil.
- 80 cm Lind Luxery, svart farge baderomsinnredning, med skuffer. Praktisk speilskap med ledlampe over.
- Romslig skap til oppbevaring.
- 60x60 fliser på veggene.
- Svarte armaturer og dusjkran. Svart avtrekksvifte og svarte brytere og stikkontakt,
- WC gulvmodell
- Varmtvannstank 100 l heat injection på veggen med plass/opplegg til vaskemaskin under.
- Vindu 60 x 120


Kjøkken:
- Kjøkkeninnredning Lerhyttan fra Ikea, kjøkkenøy.
- Kombinert kjøl/frys, stekeovn, koketopp induksjon, oppvaskmaskin og mikro. Avtrekksvifte. Aqua-stop under vask og oppvaskmaskin.
- Chef Ledlamper og stikkontakter under overskap.
- Vanninntak med varmekabler i røret, hovedstoppekran, rør i rør system i tilfelle lekkasje, aqua stop. Dette er plassert i skap under vask.
- Varmepumpe 6600 Kaiteki over terrassedør – varmer opp hele hytta og kjøler ned på sommeren.
Stue:
- Kronotex Mammut Oak Beige parkettlaminat på gulv, furupanel skygge skrå med fargen Stemning, hvitmalte profilerte lister og utforinger, hvitlasert skygge skrå panel i tak.
- Terrassedør 90 x 200 med utgang til terrasse samt flere vinduer på 3 vegger som gir veldig bra lys.
- Peisovn Aduro 9, med glassplate og stålpipe.
Soverom 1:
- Kronotex Mammut Oak Beige parkettlaminat på gulv, furupanel skygge skrå med fargen Stemning, hvitmalte profilerte lister og utforinger, hvitlasert skygge skrå panel i tak. Frisklufstventil.
- 3 stk doble stikkontakter, taklampe oyster, plass til garderobeskap, stort vindu 90 x 160 og Panelovn.
Soverom 2:
- Kronotex Mammut Oak Beige parkettlaminat på gulv, furupanel skygge skrå med fargen Stemning, hvitmalte profilerte lister og utforinger, hvitlasert skygge skrå panel i tak. Friskluftsventil.
- 2 stk doble stikkontakter, taklampe oyster, 70 x 160 vindu. Panelovn.
Soverom 3, loft:
- Kronotex Mammut Oak Beige parkettlaminat på gulv, furupanel skygge skrå med fargen Stemning, hvitmalte profilerte lister og utforinger, hvitlasert skygge skrå panel i tak.
- 2 stk doble stikkontakter, vegglampe
- 2 stk trekantvinduer
Gang:
- Varmekabler i gulv, 30x60 gulvfliser, trapp/hemsestige til loft, sikrings/dataskap og plass til garderobe innerst i gangen. Egen alarm til septiktank. Astro ur til styring av utelys. Brannslukningsapparat.
- 5 stk downlights i tak med dimmer
TV-stue, loft:
- Kronotex Mammut Oak Beige parkettlaminat på gulv, furupanel skygge skrå med fargen Stemning, hvitmalte profilerte lister og utforinger, hvitlasert skygge skrå panel i tak.
- 8 stk doble stikkontakter og uttak til fiber/Internett, vegglampe med bryter oppe og nede. Røykvarsler. Downlights i tak og spotskinne i trappa – begge med dimmere.
- To store flotte 160 x 160 trekant-panoramavinduer. Panelovn.
Ute:
- Gedigen terrasse på ca 60m2 på 3 sider av hytta, flott uteområde. Overbygd inngangsparti.


HER LIGGER TOMTENE
Vi hjelper deg med å realisere hyttedrømmen!
Ikke nøl med å ta kontakt dersom du har spørsmål knyttet til våre hytter eller tjenester.





